Language
PRODUCTS
SPECIAL LIFT & CONTAINER LIFT
FS15WX
Features
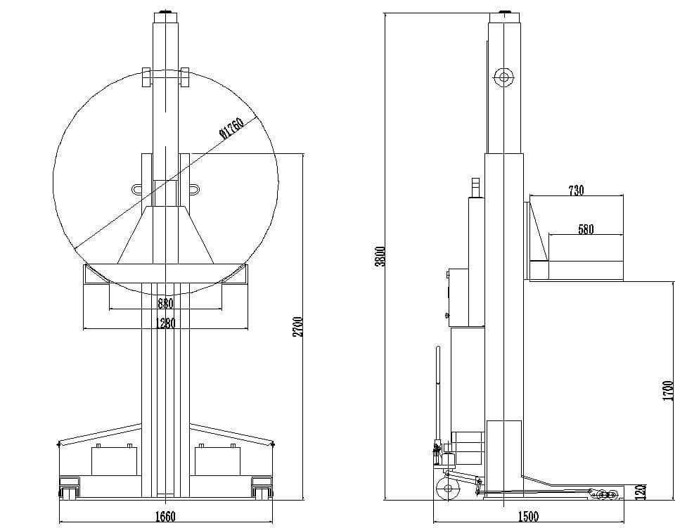
Technical Specification
Model No. 
FS15WX‐6 FS15WX‐4 
Lifting Capacity
15000 kg x 6
15000 kg x 4
Lift Height
1700 mm  1700 mm 
Lifting Speed
12 mm/s
12 mm/s
Control Voltage
24 V
24 V
NEW & HOT SALES PRODUCTS